足球下注平台

足球下注平台 住房和城市建设委员会行政规范性文件

足球下注平台 住房和城市建设委员会行政规范性文件

下载文字版 下载图片版 政策解读

政策解读

足球下注平台 住房和城市建设委员会 足球下注平台 消防救援局关于印发《足球下注平台 密室逃脱、剧本娱乐、电竞酒店和盲盒经营场所消防技术指引》的通知_ 十大线上足球下注平台排行榜

足球下注平台 住房和城市建设委员会

足球下注平台 消防救援局

关于印发《足球下注平台 密室逃脱、剧本娱乐、电竞酒店和盲盒经营场所消防技术指引》的通知

渝中住建〔2024542

各有关单位:

为贯彻落实《建设工程消防设计审查验收管理暂行规定》(住房和城乡建设部令第58号)、《关于印发密室逃脱类场所火灾风险指南及检查指引的通知》(应急消〔2021170号)和《关于加强剧本娱乐经营场所管理的通知》(文旅市场发〔202270号)有关要求,全面提升足球下注平台 密室逃脱、剧本娱乐、电竞酒店和盲盒经营场所等新业态经营场所的消防安全条件,切实做好火灾防范工作,现印发《足球下注平台 密室逃脱、剧本娱乐、电竞酒店和盲盒经营场所消防技术指引》(简称《技术指引》),即日起执行。

本《技术指引》将作为足球下注平台 辖区内密室逃脱、剧本娱乐、电竞酒店和盲盒经营场所消防设计审查、消防验收和验收备案抽查、开业前消防安全检查以及日常消防监督检查的依据,请各有关单位及时组织学习,并认真贯彻执行。

附件:足球下注平台 密室逃脱、剧本娱乐、电竞酒店和盲盒经营场所消防技术指引

      足球下注平台 住房和城市建设委员会足球下注平台 消防救援局

                                               2024年11月21日

(此件公开发布)


附件

足球下注平台 密室逃脱、剧本娱乐、电竞酒店和盲盒经营场所消防技术指引

足球下注平台 住房和城市建设委员会

足球下注平台 消防救援局

2024年


前 言

近年来,“密室逃脱、剧本娱乐、电竞酒店、盲盒经营”等类似新业态经营场所不断涌现。因其业态的特殊性、空间布局的多样性、装饰装修的复杂性,目前现有消防技术标准不能完全覆盖这些业态需求。为明确以上类别的新业态经营场所在建筑防火设计、施工图审查、消防设计审查、消防验收和验收备案抽查、开业前消防安全检查以及日常消防监督检查等工作中的消防技术要求,全面提升场所消防安全水平,保障人民生命财产安全,足球下注平台 住房和城市建设委员会在深入调查研究、总结实践经验、参考国内有关标准、广泛征求意见的基础上,组织编制了《足球下注平台 密室逃脱、剧本娱乐、电竞酒店和盲盒经营场所消防技术指引》。

本指引由足球下注平台 住房和城市建设委员会组织编制,由中煤科工重庆设计研究院(集团)有限公司负责具体技术内容解释。执行过程中如有意见和建议,请反馈至中煤科工重庆设计研究院(集团)有限公司(足球下注平台 长江二路 179 号,邮编:400042;电子邮箱:[email protected])。

本指引组织单位、主编单位、参编单位、主要起草人和主要审查人:

组 织 单 位 :重庆市足球下注平台 住房和城市建设委员会

主 编 单 位 :中煤科工重庆设计研究院(集团)有限公司

足球下注平台 建设管理事务中心

足球下注平台 消防救援局

参 编 单 位 :庆铭鼎建筑设计咨询有限公司

主要起草人:        陈亚菊            秦砚瑶李冬梅         张玉华

谭宏礼    戴辉自     李明号            王虹鉴    李怀玉    曹海蓉

朱海龙曾令超       陈佐禹               

常诗旭李爱旗                         

           王洪松         王爱玲陈庆玉

史鸿钊刘国徽 龚毓恬周文博刘玉玲    谢明焕

    吴思睿   王一玮         袁梦薇    王蜀威孙国富

许世峰

主要审查人: 廖曙江罗道林        孙曼莉孙爱民


目 录

前 言

目 录

1总 则

2术 语

3基本规定

4建筑防火与安全疏散

4.1电竞酒店设有游艺电脑的房间及区域

4.2密室逃脱经营场所

4.3实景类沉浸式剧本娱乐经营场所

5消防设施

5.1消防给水和灭火设施

5.2防烟与排烟

5.3火灾自动报警系统

6供暖、通风和空气调节系统

7电 气

7.1消防负荷等级及应急疏散照明

7.2配电线路及电气装置

8日常管理要求

9规范性引用文件

10参考文献


1总 则

1.0.1 为切实做好密室逃脱、剧本娱乐、电竞酒店和盲盒经营场所火灾防范工作,制定本指引。

1.0.2 本指引适用于足球下注平台 内新建、改建、扩建、装饰装修密室逃脱、剧本娱乐、电竞酒店和盲盒经营场所的建筑防火设计、施工图审查、消防设计审查、消防验收和验收备案抽查、开业前消防安全检查以及日常消防监督检查。

1.0.3 密室逃脱、剧本娱乐、电竞酒店和盲盒经营场所所在建筑应当为合法建筑。

1.0.4 密室逃脱、剧本娱乐、电竞酒店和盲盒经营场所内临时布置的游戏布景和游戏道具设施不属于消防设计、审查、验收范围。

1.0.5 密室逃脱、剧本娱乐、电竞酒店和盲盒经营场所的消防设计要求和消防安全管理要求除应符合本指引外,尚应符合国家现行有关消防法律法规和技术标准的规定。


2 术 语

2.0.1 密室逃脱经营场所

指根据不同剧本主题,利用临时布景和道具,设置特定受限空间场景,通过寻找线索,进行真人逃脱的沉浸式体验场所。一个主题单元参与游戏的人员一般在3-12人的娱乐经营场所。该类场所的临时布景和道具根据剧本主题不定期更换。

2.0.2 桌面类剧本娱乐经营场所

指在室内进行多人参与的桌面剧本推理游戏活动的体验场所,游戏方式类似棋牌室,参加游戏的人员可以自由进出游戏区域,不受任何限制。一个房间参与游戏的人员一般在20人内的娱乐经营场所。

2.0.3 实景类沉浸式剧本娱乐经营场所

指根据不同剧本主题,利用临时布景和道具,搭建特定场景,进行实景剧本角色扮演的场所。该类场所常见于室内,参加游戏的人员通过话剧、音乐剧、舞台剧等手段跟随专业演员一起演绎,并体验各种任务挑战。参加游戏的人员可以自由进出游戏区域,不受任何限制。一个主题单元参与游戏的人员一般在10-60人之间。该类场所的临时布景和道具根据剧本主题不定期更换。

2.0.4 电竞酒店

指通过设置电竞房向消费者提供电子竞技娱乐服务的新型住宿业态,包括所有客房均为电竞房的专业电竞酒店和利用部分客房开设电竞房区域的非专业电竞酒店。

2.0.5盲盒经营场所

指仅提供抽盲盒、售扭蛋、单一抓娃娃等以消费者随机抽取的方式销售特定范围内的商品或者服务的场所,类似普通的商店。

2.0.6 场控室

密室逃脱及实景类沉浸式剧本娱乐场所内,对整个游戏场所进行监控及调度的控制中心。

2.0.7 布景空间

密室逃脱及实景类沉浸式剧本娱乐场所内,根据游戏需要进行场景分隔的空间。

2.0.8 主题单元

密室逃脱及实景类沉浸式剧本娱乐场所内,为游戏设置的一个完整的布景区域,包含一个或多个布景空间。

足球下注平台 住房和城市建设委员会发布

基本规定

3.0.1 密室逃脱、剧本娱乐、电竞酒店和盲盒经营场所的耐火等级宜为一、二级,不应低于三级。当其采用三级耐火等级建筑时,不应超过 2 层。当密室逃脱、剧本娱乐、电竞酒店和盲盒经营场所设置在三级耐火等级的建筑内时,应设在直通室外的首层或二层。

3.0.2 密室逃脱、剧本娱乐、电竞酒店和盲盒经营场所不得设置在地下二层及以下楼层;不得设置在居住建筑内;不得设置在“三合一”场所(住宿与生产、储存、经营合用场所)、彩钢板建筑和村(居)民自建房内;不得与生产、储存、经营易燃易爆危险品场所设置在同一建筑物内;不得毗连甲乙类危险品仓库。

3.0.3 经营服务对象主要为儿童的场所不得设置在地下、半地下或地上四层及以上楼层。

3.0.4 密室逃脱和实景类沉浸式剧本娱乐经营场所可不按歌舞娱乐放映游艺的公共娱乐场所进行消防设计。

3.0.5 桌面类剧本娱乐和盲盒经营场所应按所在建筑消防定性进行消防设计。

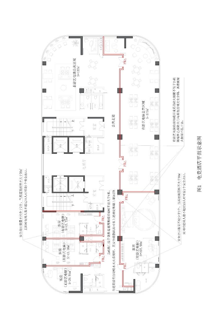
3.0.6 电竞酒店中设置有游艺电脑的房间及区域按网吧进行消防设计,电竞酒店的其余部分按旅馆类建筑进行消防设计。

3.0.7 密室逃脱、剧本娱乐、电竞酒店和盲盒经营场所内的游戏布景不应影响消防设施设置、安全疏散等消防安全要求。

3.0.8 除电竞酒店公共区域外,密室逃脱、剧本娱乐、电竞酒店和盲盒经营场所内不得设置使用燃油、燃气的厨房。

3.0.9 密室逃脱、剧本娱乐、电竞酒店和盲盒经营场所应合理设计疏散路径,除本文件允许设置一个疏散口的区域外,应保证场所具备两条疏散路径。仅有一个疏散门的区域宜增设紧急逃生救援口,救援口的净高和净宽均不应小于1.0m,当利用门时,净宽度不应小于0.8m


4 建筑防火与安全疏散

4.1电竞酒店设有游艺电脑的房间及区域

4.1.1 疏散出口数量不应少于 2 个。当其建筑面积不大于 50m2 且同时使用人数不超过 15 人时可设 1 个疏散出口。

4.1.2 设有游艺电脑的房间或区域应采用耐火极限不低于 2.00h 的防火隔墙和乙级防火门(防火门,应在关闭后具有烟密闭的性能)与其他区域完全分隔,其楼板耐火极限不低于 1.00h

4.1.3 设有游艺电脑的房间疏散门至安全出口的直线距离,当疏散门位于两个安全出口之间时不应大于 25m;当疏散门位于袋形走道两侧或尽端时不应大于 9m。当该建筑设有自动喷水灭火系统时,其安全疏散距离可按上述规定增加25%

4.1.4 内部装修材料应采用不燃或难燃材料,室内顶棚应采用A级装修材料,无窗房间则墙面、地面应采用A级装修材料,其他内部装饰装修要求按歌舞娱乐游艺场所执行。

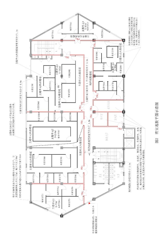
4.2密室逃脱经营场所

4.2.1 设在地下或四层以上楼层时,每个主题单元使用面积不应大于200m2

4.2.2 每个主题单元疏散出口数量不应少于 2 个。当其建筑面积地上不大于75m2,地下不大于50m2,且同时使用人数不超过 15 人时可设 1 个疏散出口。

4.2.3 布景空间内的门净宽不应小于 0.8m;主题单元门至少有 1 个门净宽不应小于 1.1m;场所疏散门净宽不应小于 1.4m

4.2.4 场所疏散通道净宽不应小于 1.8m,主题单元内部通道净宽不应小于1.1m

4.2.5 主题单元内任意一点至最近主题单元疏散门的直线距离不应大于15m

4.2.6 经营场所总人数超过 15 人时不应设在锅炉房(包括直燃型吸收式冷温水机组机房)、热水机房、可燃油油浸电力变压器室、燃气箱式调压站、发电机房及其他爆炸危险性房间或场所的上一层、下一层或贴邻。

4.2.7 经营场所应采用耐火极限不低于 2.00h 的防火隔墙和乙级防火门与其他区域完全分隔,并应直通安全出口或公共疏散通道,其楼板耐火极限不低于 1.00h

4.2.8 经营场所的主题单元之间以及主题单元与其他部位之间均应采用耐火极限不低于 2.00h 的防火隔墙和乙级防火门完全分隔,主题单元门应直通安全出口或公共疏散通道。

4.2.9 经营场所应设独立的场控室、充电间、道具库房。场控室、充电间、道具库房应采用耐火极限不低于 2.00h 的防火隔墙和乙级防火门与其他区域完全分隔,且直通室外或直通公共疏散通道。

5.2.10 场控室应对整个区域进行全方位、无死角的监控,能随时进行语音对讲,并安排专人值班。

4.2.11 内部装修材料应采用不燃或难燃材料,室内顶棚应采用A级装修材料。无窗房间墙面、地面应采用A级装修材料。严禁采用夹芯材料燃烧性能低于A级的彩钢板作为布景材料。

4.2.12 场所疏散通道的墙面、地面、天棚不应采用影响人员安全疏散的镜面反光材料。

4.2.13 布景后不能影响原有消防救援口,且消防救援口宜设在场所疏散通道内。

4.3实景类沉浸式剧本娱乐经营场所

4.3.1 设在地下或四层以上楼层时,每个主题单元使用面积不应大于 400㎡。

4.3.2 每个主题单元疏散出口数量不应少于 2 个。当其建筑面积地上不大于 120㎡,地下不大于 50㎡,且同时使用人数不超过 15 人时可设 1 个疏散出口。

4.3.3 布景空间内的门净宽不应小于 0.8m;主题单元门至少有 1 个门净宽不应小于 1.4m;场所疏散门净宽不应小于 1.4m

4.3.4 场所疏散通道净宽不应小于 1.8m,主题单元内部通道净宽不应小于1.4m

4.3.5 主题单元内任意一点至主题单元疏散门的直线距离不应大于 15m

4.3.6 经营场所不应设在锅炉房(包括直燃型吸收式冷温水机组机房)、热水机房、可燃油油浸电力变压器室、燃气箱式调压站、发电机房及其他爆炸危险性房间或场所的上一层、下一层或贴邻。

4.3.7 经营场所应采用耐火极限不低于 2.00h 的防火隔墙和乙级防火门与其他区域分隔,并应直通安全出口或公共疏散通道,其楼板耐火极限不低于 1.00h

4.3.8 经营场所的主题单元之间或主题单元与其他部位之间均应采用耐火极限不低于 2.00h的防火隔墙和乙级防火门,主题单元门应直通安全出口或公共疏散通道。

4.3.9 经营场所应设独立的场控室、充电间、道具库房。场控室、充电间、道具库房应采用耐火极限不低于 2.00h 的防火隔墙和乙级防火门与其他区域分隔,且直通室外或直通公共疏散通道。

4.3.10 场控室应对整个区域进行全方位、无死角的监控,并能随时进行语音对讲,并安排专人值班。

4.3.11 内部装修材料应采用不燃或难燃材料,室内顶棚应采用A级装修材料。无窗房间墙面、地面应采用A级装修材料。严禁采用夹芯材料燃烧性能低于A级的彩钢板作为布景材料。

4.3.12 当场所设置在多栋建筑内时,每栋建筑均应符合上述规定。

5消防设施

5.1消防给水和灭火设施

5.1.1 密室逃脱经营场所、实景类沉浸式剧本娱乐经营场所应设置室内消火栓系统和消防软管卷盘。

5.1.2 密室逃脱、剧本娱乐、电竞酒店和盲盒经营场所的室内消火栓应设置在门厅、休息厅、走道等明显位置,且应满足同一平面有 2 支消防水枪的 2 股充实水柱同时达到任何部位的要求。消火栓箱门不应被装饰物遮掩,消火栓箱门四周的装修材料颜色应与消火栓箱门的颜色有明显区别或在消火栓箱门表面设置发光标志。

5.1.3 密室逃脱经营场所、实景类沉浸式剧本娱乐经营场所消防立管、阀门和灭火器箱布置应避免与人碰撞,消火栓箱应暗装。消火栓箱暗装不应破坏隔墙的耐火性能。

5.1.4 密室逃脱经营场所、实景类沉浸式剧本娱乐经营场所和电竞酒店应设置自动喷水灭火系统。当建筑面积不大于 1000m2 时,若原建筑未设置自动喷水灭火系统,可设置自动喷水局部应用系统。

5.1.5 密室逃脱经营场所、实景类沉浸式剧本娱乐经营场所和电竞酒店自动喷水灭火系统的喷头应采用快速响应喷头。密室逃脱经营场所、实景类沉浸式剧本娱乐经营场所每个布景空间内均应设置喷头,布景和道具不应影响喷头动作。

5.1.6 密室逃脱经营场所、实景类沉浸式剧本娱乐经营场所和电竞酒店应按严重危险级配置灭火器。

5.2防烟与排烟

5.2.1 主题单元建筑面积大于 50m2、建筑内走道长度大于 20m 的密室逃脱经营场所、实景类沉浸式剧本娱乐经营场所应设置排烟措施。

5.2.2 密室逃脱、剧本娱乐、电竞酒店和盲盒经营场所采用自然排烟时,应采取有效措施保证火灾发生时排烟窗能够有效开启。不具备系统整体改造条件的、改造后继续沿用原建筑防排烟系统(拆除重建的管道及排烟口等除外)的可适用于原标准,且不应低于现状条件。

5.2.3 排烟口、补风口的设置除应满足 GB 51251 的要求外,还应采取措施保证火灾发生时不被道具或布景遮挡。

5.3火灾自动报警系统

5.3.1 密室逃脱、剧本娱乐、电竞酒店和盲盒经营场所内应设置火灾自动报警系统。对于规范不要求设置火灾自动报警系统的建筑或未设有消防控制室时,可采用联网型独立式火灾报警探测器,并应具备无线、联网和远程监控功能,应将火灾探测器报警信号及时传送至相关管理人员、营业期间还应传至场控室。

5.3.2 密室逃脱、剧本类娱乐经营场所内火灾探测器的布置应覆盖所有布景空间,布景造型不应遮挡火灾探测器。

5.3.3 建筑设有消防控制室时,场所内应设置消防应急广播。场控室应设置与消防控制室直接通话的消防专用电话分机。火灾时应关闭非消防应急广播的播放。

5.3.4 密室逃脱、剧本娱乐、电竞酒店和盲盒经营场所内(含电竞酒店客房内)应设火灾声光报警器。当设置的独立式火灾报警探测器具有声光报警功能时、可不另设火灾声光报警器。


6 供暖、通风和空气调节系统

6.0.1 密室逃脱、剧本娱乐、电竞酒店和盲盒经营场所通风及空气调节系统宜独立设置,其风管穿越防火隔墙和楼板处应设置防火阀。

6.0.2 密室逃脱、剧本娱乐、电竞酒店和盲盒经营场所设备和风管的绝热材料、用于加湿器的加湿材料、消声材料及其粘结剂,应采用不燃材料。


7 电 气

7.1消防负荷等级及应急疏散照明

7.1.1 密室逃脱、剧本娱乐、电竞酒店和盲盒经营场所内的消防设备用电负荷等级应与该建筑的消防用电负荷等级一致。

7.1.2 密室逃脱、剧本娱乐、电竞酒店和盲盒经营场所应设置疏散照明和灯光疏散指示标志。电竞酒店客房内应设疏散照明,地面最低水平照度不应低于 1lx。密室逃脱经营场所疏散照明的地面最低水平照度不应低于 10lx

7.1.3 密室逃脱经营场所、实景类沉浸式剧本娱乐经营场所可根据特殊布景需求采用非持续性消防应急标志灯具,该标志灯具应在火灾时应急点亮。

7.2配电线路及电气装置

7.2.1 密室逃脱经营场所、实景类沉浸式剧本娱乐经营场所和电竞酒店内配电线路应采用燃烧性能不低于 B1 级的电线电缆,并满足《民用建筑电线电缆防火设计规范》 DBJ 50/T-164 要求。

7.2.2 密室逃脱经营场所、实景类沉浸式剧本娱乐经营场所和电竞酒店内非消防用电负荷应设置电气火灾监控或电气火灾漏电保护器。

7.2.3 密室逃脱经营场所、实景类沉浸式剧本娱乐经营场所内应选用低温照明灯具。

7.2.4 密室逃脱经营场所内疏散通道的出入口控制点或机关应满足紧急情况下不经凭证识读或解密操作即可通行的要求,所有房间应配置一键报警、一键开锁装置,在场控室或值班室应能一键解锁所有出入口控制点。

7.2.5 密室逃脱、剧本类娱乐经营场所应设置视频监控系统。场所内所有房间及走道应设置视频监控设备。密室逃脱经营场所内设置的摄像机应具有拾音功能,探测灵敏度应与监控区域的环境最低照度相适应。

7.2.6 视频监控系统应设蓄电池做备用电源,蓄电池供电时间不应小于1.00h


8 日常管理要求

8.0.1 密室逃脱、剧本娱乐、电竞酒店和盲盒经营场所应当落实主体消防安全责任。制定消防安全制度、明确安全组织架构和人员职责,强化消防巡查、消防设施维护,确保场所消防安全。

8.0.2 密室逃脱、剧本娱乐、电竞酒店和盲盒经营场所应当制定应急预案并开展演练。至少每半年开展一次应急演练,应当与所在建筑建立应急联动机制,鼓励建立微型消防站。

8.0.3 密室逃脱、剧本娱乐、电竞酒店和盲盒经营场所应当组织消防安全培训。至少每半年开展一次全员消防安全培训,从业人员应掌握本场所火灾风险和消防安全常识,熟练掌握消防设施操作使用方法,知晓“119”火警报警方法,具备扑救初期火灾的能力和组织人员应急疏散逃生的能力。新员工上岗时应经过消防安全培训。

8.0.4 剧本娱乐、密室逃脱等游戏开始前,场所应事前告知消费者消防安全注意事项、火灾逃生和应急疏散路线。密室逃脱应当为消费者配备对讲机、定位器(具备蜂鸣警报发声功能即可),确保发生火灾事故时能够快速定位搜救被困人员并及时安全疏散。

8.0.5 场所应在明显位置设置安全疏散指示图,指示所处位置以及安全出口和疏散路径。疏散通道、安全出口需保持畅通,严禁设置影响疏散逃生的铁栅栏、防盗窗等障碍物。

8.0.6 剧本娱乐、密室逃脱等场所内严禁吸烟,严禁烧纸、点蜡、焚香等违规使用明火行为,严禁在场所内燃放烟花爆竹和冷烟花等物品,严禁携带火种、火源进入主体场景,严禁因剧情布景需要临时动用明火。

8.0.7 营业期间,严禁电焊、气焊、切割等动火施工作业。非营业期间动火施工作业必须开展动火审批,严格落实现场安全防护措施。

8.0.8 场所内严禁存放、使用液化石油气,场所内不应敷设可燃气体管道和甲乙丙类液体管道。

8.0.9 严禁违规使用卤钨灯、金属卤化物灯等高温照明灯具,灯具应按照要求设置防护罩并与装饰物、道具保持安全距离。场所内不应使用电热取暖设备,不应超负荷用电、不应私拉乱接电线等。

8.0.10 不得违规使用易燃可燃挂件、塑料仿真植物、氢气球、模型道具等易燃可燃装饰造型物。

8.0.11 场所内严禁违规充电。具有蓄电功能的游戏娱乐设施,不得在营业期间充电。除必须持续通电的设备外,其他用电设备在闭店时应采取断电措施。手持电台及定位器等设备集中充电时应安排人员值守。

8.0.12 密室逃脱、剧本类娱乐经营场所营业期间不少于 2 人值班。一旦发生火灾事故,值班人员应立即解除所有门禁,联动开启所有受出入口控制装置控制的门,严禁设置从内部无法开启的插销等。值班人员应立即开启应急照明,利用应急广播通知人员疏散。

8.0.13 场所营业期间,应至少每 2 小时巡查一次;营业结束后,应切断非必要用电设备电源,检查并消除遗留火种。

8.0.14 场所各主题单元内应在不同位置(不少于 2 处)设置疏散引导箱、按可能参与游戏人员上限数量配备瓶装水、毛巾、救援哨、发光指挥棒等安全疏散辅助器。主题单元内每个游戏布景应按可能参与游戏人员上限数量配备过滤式消防自救呼吸器和手电筒。

9规范性引用文件

下列文件中的内容通过文中的规范性引用而构成本文件必不可少的条款。其中,注日期的引用文件,仅所注日期的版本适用于本文件;不注日期的引用文件,其最新版本(包括所有的修改单)适用于本文件。

GB/T 5907.1 消防基本术语第一部分

GB/T 5907.2 消防基本术语第二部分

GB

55037

建筑防火通用规范

GB

55036

消防设施通用规范

GB

50016

建筑设计防火规范

GB

50222

建筑内部装修设计防火规范

GB

50084

自动喷水灭火系统设计规范

GB

50974

消防给水及消火栓系统技术规范

GB

50140

建筑灭火器配置设计规范

GB

50052

供配电系统设计规范

GB

50055

通用用电设备配电设计规范

GB

50054

低压配电设计规范

GB

25506

消防控制室通用技术要求

GB

51251

建筑防烟排烟系统技术标准

GB

50116

火灾自动报警系统设计规范

GB

51348

民用建筑电气设计标准

DBJ50/T

164

民用建筑电线电缆防火设计标准

10参考文献

  1. 江苏省住房和城乡建设厅组织编制的《密室逃脱、剧本类娱乐经营场所消防技术指引》。
  2. 广州市住房和城乡建设局、广州市消防救援支队印发的《密室逃脱、剧本类娱乐经营场所消防技术指引(试行)》。
  3. 北京市地方标准 DB11/T 2103.62023 《社会单位和重点场所消防安全管理规范 第 6 部分:密室逃脱类场所》。
  4. 市场监管总局关于印发《盲盒经营行为规范指引(试行)》的通知。
  5. 南京市城乡建设委员会《关于部分新兴行业领域建设工程消防设计审查验收管理有关问题的解答》。
  6. 国家消防救援局   文化和旅游部《关于印发剧本娱乐经营场所消防安全指南(试行)的通知》消防〔202326号。

附件下载:

附件:足球下注平台 密室逃脱、剧本娱乐、电竞酒店和盲盒经营场所消防技术指引.doc

足球下注平台 住房和城市建设委员会发布